
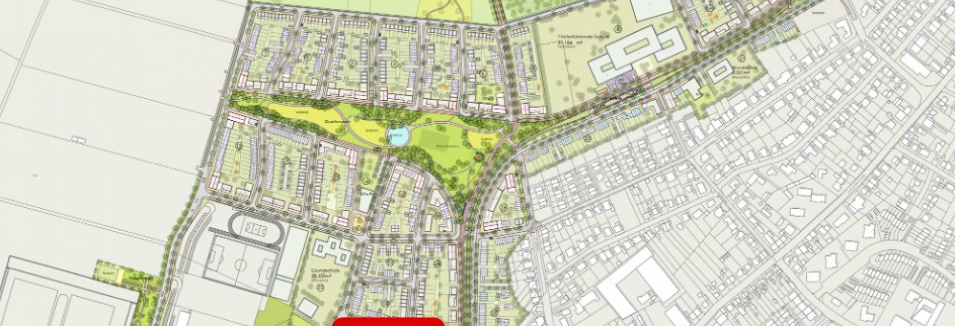
Vertriebsstart: Acht Grundstücke für freistehende Einfamilienhäuser
Alle uns bekannten Interessenten für den Kauf eines Grundstücks, das mit einem freistehenden Einfamilienhaus bebaut werden kann, haben am Donnerstag letzter Woche von uns Post mit Login-Daten zum Vermarktungsbereich unserer Website erhalten.
Interessenten haben die Gelegenheit, bis zum 30. September 2025 ein konkretes Angebot für das von Ihnen ausgewählte Grundstück – bei der Auswahl von Alternativen auch für diese Grundstücke – abzugeben. Bis zum 10. Oktober 2025 werden wir die Interessenten darüber informieren, ob und welches Grundstück wir Ihnen zum Kauf anbieten. Wir weisen vorsorglich darauf hin, dass dieses Angebot sich ausdrücklich nicht an mögliche Immobilienvermittler richtet.
Sie sind an einem Grundstück für ein freistehendes Einfamilienhaus interessiert? Dann schreiben Sie an
Interessenten für ein Doppel- bzw. Reihenhaus müssen wir noch vertrösten. Die für diese Haustypen geeigneten Grundstücke werden wir an Bauträger veräußern, die nach der Projektierung das jeweilige Haus mit Grundstücksanteil anbieten. Hierüber werden wir Sie gerne fortlaufend informieren.